Home
Kontakt
IMPRESSUM
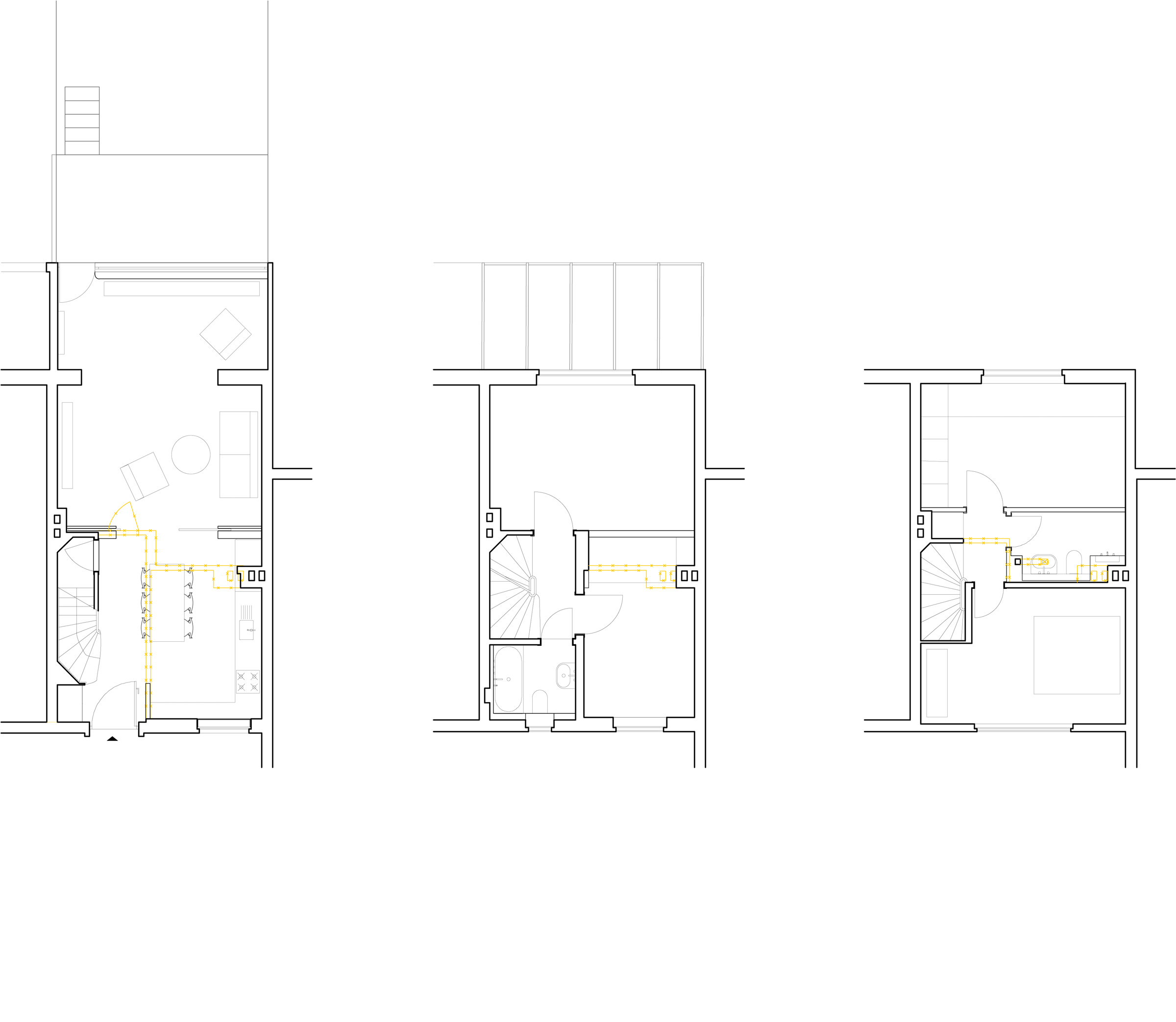
APEL SENFTLEBEN
HAUS H
Sanierung und Umbau eines Bruno-Taut-Reihenhauses
Berlin, Waldsiedlung Zehlendorf
error: